• 1. MCCB ABB 1SDA068758R1

  • Cầu dao điện tự động dạng khối loại A1B

  • Mã sản phẩm: 1SDA068758R1

  • Dòng định mức: 32 A

  • Số cực: 3

  • Khả năng cắt dòng ngắn mạch 18 kA theo tiêu chuẩn IEC 60947-2

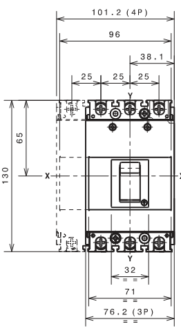
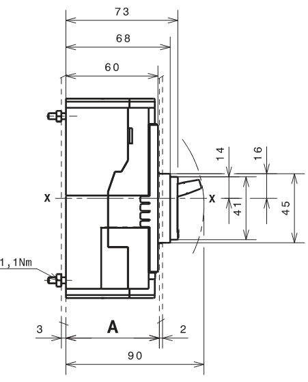
  • 2.Kích thước

  • MCCBMCCB

  • ⇒ Chọn các mã sản phẩm khác của MCCB ABB SACE Formula
SKU: 1SDA068758R1 Category: